
UN LUGAR QUE ELIGIERON LOS TRENES
En 1847, siguiendo los planos del agrimensor Alejo Lainier y el ingeniero Jules Sagebien, comenzó la construcción de un ferrocarril que acabaría uniendo el puerto de Cienfuegos con los centrales azucareros y los pueblos más importantes de la llanura central de Cuba.
Cinco años después y veinticuatro kilómetros al noreste, el 10 de julio de 1852, el trazado alcanzó el punto más cercano a San Fernando de Camarones, una de las villas más antiguas de la región. No había más que cañaverales por todas partes y pequeñas arboledas a la vera de los caminos y los arroyos.
Una grúa de vapor levantó una casilla de madera para colocarla sobre ocho pilotes. Al adosarle un pequeño andén con techo de tejas, tomó forma de estación.
Se trataba de algo provisional, como lo es todo en los lugares de paso. Dos largos tablones permitían el paso desde la línea hasta la plataforma.
Muy pronto en sus alrededores comenzaron a levantar cuartones para ganado, vendutas, fondas, tiendas y, por último, casas. El constante trasiego de mercancías hizo necesario la construcción de un almacén. Así nació el Paradero de Camarones, un lugar que no eligieron las personas sino los trenes.
Hasta el 15 de noviembre de 1853, en que el trazado llegó a Cruces, ese era el punto final de la vía. La primera vez que apareció en un mapa fue, precisamente, en un Itinerario del Ferrocarril de Cienfuegos & Villa Clara. Entonces ya tenía un trasbordador de caña y San Damián era su santo patrón.
En 1914, los Ferrocarriles Unidos demolieron la antigua estación y construyeron otra de ladrillos, techo de zinc y dos andenes, uno en la línea de Cienfuegos y otro en el enlace de un ramal que en un principio se proyectó hasta Manicaragua, pero que no pasó mucho más allá de Cumanayagua.
El nuevo edificio incluía oficina, salón de espera, almacén y una vivienda para la familia del jefe de estación. Se construyeron otras cuatro estaciones idénticas: Rancho Veloz, Cifuentes, San Diego del Valle y Jorobada. Las dos primeras de mampostería y las otras de madera.
Todas tenían techos en los andenes, excepto Camarones. Su construcción siempre se pospuso, primero por un ciclón y después por un sin número de contratiempos. Dejar al caserón totalmente descubierto lo expuso aún más, tanto a la luz del día como a las ráfagas de los vientos y las lluvias.
Los que no conocían el lugar y llegaban a él en un tren nocturno, podían hacerse la idea de que el pueblo era mucho más grande. Pero apenas tenía tres callejones, dos tiendas, un bar, una escuela, un cuartel, un cine, una oficina de correos, una barbería y una peluquería.
Un pretil con almenas cubría el techo de zinc de la estación, eso le daba una apariencia de castillo o fuerte militar. Las vías férreas que la rodeaban eran su foso o sus trincheras. No se podía llegar a ella sin salvar ese obstáculo. En ese espacio ocurrió mi infancia.
MAPA DEL PARADERO DE CAMARONES
Siempre deseé que Atlántida contara con un mapa del Paradero de Camarones. Los planos de Winesburg, Ohio (la novela de Sherwood Anderson) y de Yoknapatawpha (el pequeño poblado donde ocurren casi todas las historias de William Faulkner) me obsesionaron con ello.
El único mapa de mi pueblo que conocí estaba en la barbería de Felipe Marín. Lo había trazado él mismo a mano alzada y no obedecía a ninguna escala. Aun así, era bastante preciso. Señalaba desde edificaciones que ya habían desaparecido hasta las casas que tenían pozo propio.
Siempre he lamentado no haber acopiado toda la información que contenía aquel mapa. A falta de aquellos datos, se señalan los puntos más importantes del lugar y los escenarios claves de Atlántida. Tampoco está hecho a escala, pero calca una vista satelital de Google Earth.
En mi casa siempre hubo muchos mapas y varios atlas. En una de las paredes de su oficina, Aurelio mantenía uno de 1937 que acompañaba el Itinerario 20 de los Ferrocarriles Unidos. Aunque estaba desactualizado, mi abuelo se seguía rigiendo por aquel gráfico. A punta de dedo hacía los ajustes de lugar.
Vivir en una estación de trenes significa pertenecer a una geografía aparte. Se está en un pueblo, en una provincia y en un país, pero el edificio depende de los ramales y las líneas que le rodean. El mapa de la región central de Cuba que se adjunta aquí reproduce el mundo al que nos debíamos.
LA ESTACIÓN
La primera estación del pueblo fue un apeadero provisional. Era una pequeña casilla de madera (de las usadas para transportar azúcar) y estaba junto al crucero con la carretera a San Fernando de Camarones. Bajo su techo de tejas se guarecían los viajeros y el guardabarrera.
Duró 62 años, desde 1852 hasta 1914. La necesidad de mover la estación para el enlace del ramal Cumanayagua, construido durante los primeros años del siglo XX, hizo que los Unidos de La Habana se plantearan un edificio más grande y duradero, con muros de ladrillos, techo de zinc y dos andenes.
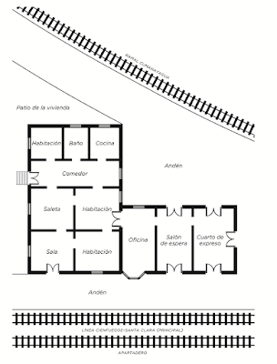
La nueva edificación estaba compuesta por dos naves rectangulares unidas en forma de L. La mayor fue destinada a la vivienda del jefe de estación y la más pequeña a la oficina, el salón de espera y el cuarto de expreso. Una puerta entre la habitación del medio y la oficina comunicaba ambos espacios.
No tenía columnas. Las paredes de ladrillos, de 30 centímetros de espesor, se repartían las cargas del alto techo a cuatro aguas. Su estilo neocolonial, elegante y sobrio, estaba coronado por unas almenas que le hacían parecer un castillo. Levantada a 40 centímetros del suelo, sobre pilotes de hormigón, parecía flotar entre las vías con un mar de cañaverales de fondo.
PLANO DE PLANTA
Planta de la estación. En la sala, un sofá con una mesita a cada lado, dos butacas y una mesa de centro. Dos sillones de majagua y dos de caoba. Atlántida y Aurelio veían televisión en los de majagua, yo en uno de los de caoba. En la saleta, el juego de comedor que fue de Nellina: un aparador, que tenía un espejo en el que todos se miraban al pasar, una enorme mesa de cristal y doce sillas.
En el comedor, dos tumbonas cerca de la puerta del patio, donde Aurelio solía dejarse caer cuando volvía de sus labores en el potrero. Allí también leía el periódico. En el centro, el aparador y la vitrina del antiguo juego de comedor de Atlántida. De caoba, muy cuidado. Del lado de la ventana que daba al andén, es decir, en el panóptico, una mesa con seis sillas.
En la cocina, un gabinete laqueado que mi abuela usaba de despensa, la meseta con el fregadero justo delante de la ventana, la estufa de gas y la mesa más vieja de la casa, la primera que compraron Aurelio y Atlántida cuando se casaron, con cuatro taburetes. En esa mesa, con un volumen muy bajo, Aurelio oía cada mañana La Voz de los Estados Unidos de América.
En el baño, además del inodoro y el lavamanos, había un pequeño estante donde Aurelio guardaba revistas y libros que solía releer cuando se encerraba allí. Yo tenía un Atlas de Cuba, un Atlas universal y varios libros de aventuras. Cuando me regalaron mi propio librero, me lo llevé todo para mi habitación, sólo dejé los atlas para encerrarme.
En la habitación de visita, una cama tres cuartos, una columbina y una coqueta. Aurelio tenía allí dos tanques de 55 galones para conservar el arroz de la cosecha y varios envases con semillas de maíz, calabaza, quimbombó y millo. En la habitación de mis abuelos, una cama camera con sus dos mesitas de noche, un chiforrober, un escaparate, una coqueta y un enorme butacón.
En mi habitación, donde Lérida también dormía de viernes a domingo, el juego de cuarto que fue de Nellina. Una cama camera con sus dos mesitas de noche, una singular cómoda que tenía dos cuerpos de gavetas enlazados al centro por una gaveta y un espejo. Un escaparate con un espejo en la puerta del centro y un butacón.
En la oficina, dos mesas (la de los teléfonos y la de hacer la contabilidad) con sus sillas, una vitrina, el boletinero y la caja fuerte. En el salón de espera, dos largos bancos. En el cuarto de expreso, una vitrina usada como archivo, una romana para pesar los paquetes, una carretilla grande y otra pequeña, ambas con ruidosas ruedas de hierro.
FACHADA OESTE
(línea Cienfuegos- Santa Clara)
De izquierda a derecha: puerta principal de la vivienda, ventana de mi habitación, caja del teléfono exterior (que era usado por los conductores de los trenes para pedir vía cuando la estación estaba cerrada), ventana de la oficina, puerta frontal del salón de espera y una de las tres puertas del cuarto de expreso.
LATERAL NORTE
De izquierda a derecha: ventana de la habitación de visitas, puerta hacia la escalera por donde se bajaba al patio y las ventanas de la saleta y la sala, respectivamente.
LATERAL SUR
De izquierda a derecha: Puerta del cuarto de expreso y las ventanas de la habitación de mis abuelos (solía ser usada por el jefe de estación, por la puerta que la comunicaba a la oficina) y del comedor, respectivamente. Desde la ventana del comedor se dominaba toda la carreterita, única vía de acceso a la estación.
FACHADA ESTE
Fachada este (ramal Cumanayagua). De izquierda a derecha: puertas del cuarto de expreso y el salón de espera, ventanas de la oficina, la cocina y el baño.
No hay comentarios:
Publicar un comentario